/Luis Maria Campos

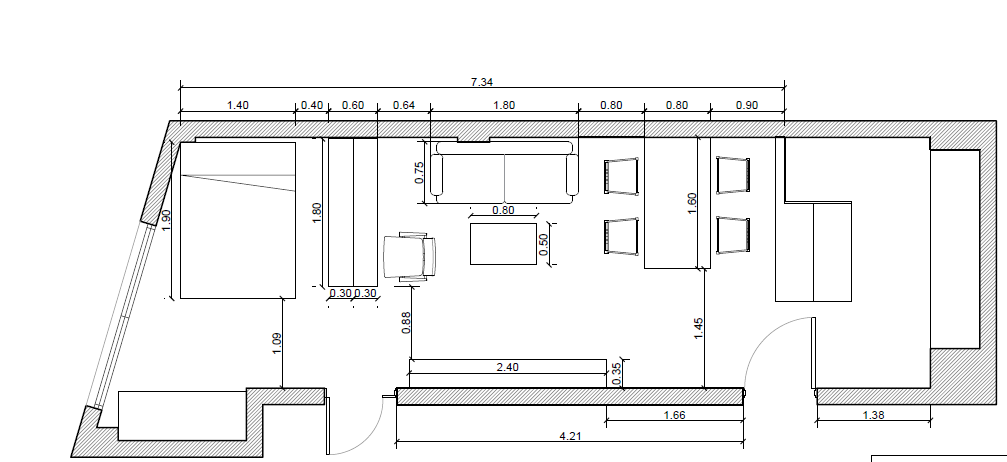
Proyecto, dirección y ejecución de obra para re-acondicionar un departamento en un 4to piso. Mobiliario realizado a medida, con el objetivo de dividir el espacio y ser funcional a la actividad del cliente.

Client
Anaclara

Location
Las Cañitas, Buenos Aires, Argentina

Year
2022

Anterior
Anterior

/ Patio Zola

Siguiente
Siguiente

/ Altolaguirre