/ Kitchen Altolaguirre

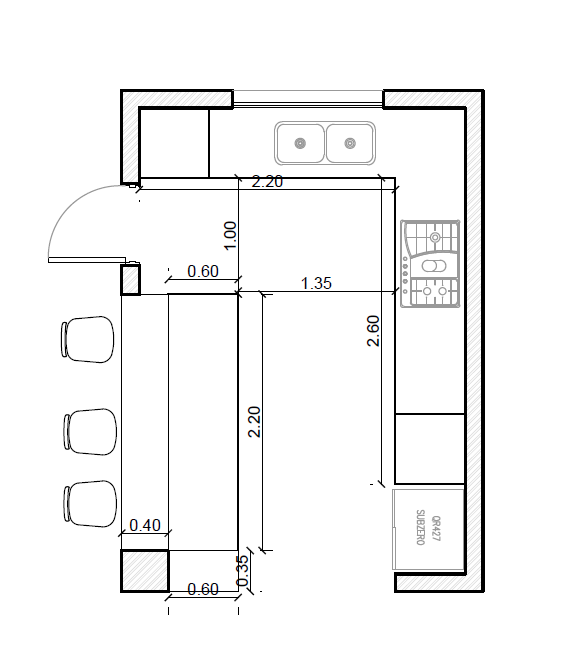
Proyecto, dirección y ejecución de obra para integrar una cocina al living-comedor de un departamento en un piso 10. Se desarrolló todo el mobiliario según los requisitos del cliente.

Client
Lau & Rick

Location
Villa Urquiza, Buenos Aires, Argentina

Year
2021

Anterior
Anterior

/ Luis Maria Campos

Siguiente
Siguiente

/ Estudio Blanco Encalada